
A vendre, Maison / Villa, 116 m²
Métropole
DESCRIPTIF DE L'ANNONCE
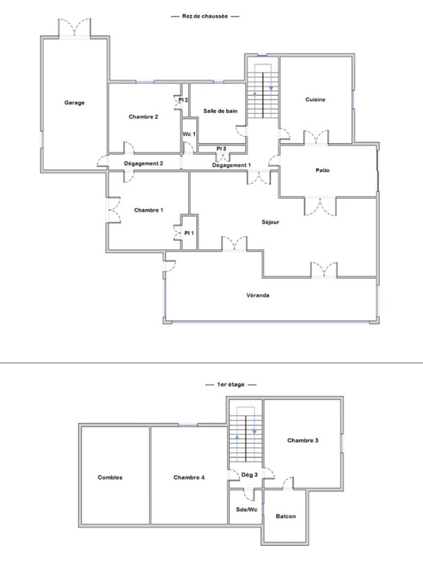
ST RESTITUT, charmant village classé en site remarquable de la Drôme Provençale, maison édifiée sur 2 niveaux sur terrain de 3492 m² dont l'atout indéniable est que 2002 m² sont constructibles au regard d'un permis d'aménager ce qui peut permettre à une famille de construire une seconde habitation sur le terrain. La maison dispose d'une surface de 115,85 m² + véranda de 40 m². Située dans un quartier résidentiel au calme , elle offre un niveau de vie complet au rez de chaussée qui permet de profiter d'un salon de près de 30 m² avec cheminée et insert sous volume appréciable et poutres apparentes, une cuisine rustique bien séparée et patio couvert entre les deux pièces de vie ; un dégagement permet d'accéder aux 2 chambres, rangement sous escalier, la salle d'eau et les toilettes ainsi que l'accès au garage; A l'étage, 2 chambres sous plafond rampant et un balcon solarium offrant une jolie vue dégagée sur le Ventoux. Panneaux photovoltaiques permettant de dégager un revenu non négligeable. Pompe à chaleur air eau. Fosse septique à remettre aux normes. Menuiseries bois. Les honoraires sont à la charge du vendeur.Les informations sur les risques auxquels ce bien est exposé sont disponibles sur le site Géorisques : www. georisques. gouv. fr. Contactez Jocelyne TESTARD Entrepreneur Individuel, Agent commercial OptimHome (RSAC N°513 526 491 Greffe de ROMANS) 06 98 78 97 61 https://www.optimhome.com/conseillers/testard (réf. 538990 )
Prix : 450 000 €
Référence Annonce 830036815065
Consulter nos honoraires agences
Annonce redigée et publiée par un agent Mandataire
Caractéristiques
| Parue le | 21/04/2023 |
| Nbr pièce(s) | Plus de 5 |
| Nbr chambre(s) | 4 |
| Surface | 116 m² |
| Garage | Oui |
SITUER LE BIEN
CONTACTER L'AGENCE
Merci de renseigner votre e-mail pour que nous puissions vous renvoyer votre mot de passe.