
A vendre, Maison / Villa, 93 m²
Saint André (97440)
DESCRIPTIF DE L'ANNONCE
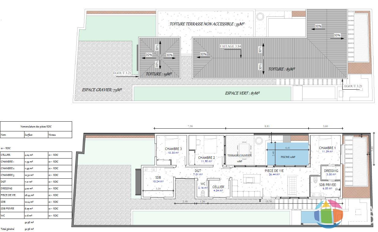
Villa MANHATTAN - Projet villa neuve contemporaine et de standing de 92,58m² (surface habitable) + piscine, sur une parcelle de 396m2 (dont environ 316m² exploitables). Située dans une résidence privée dans le secteur de chemin LEFAGUYES, à proximité de la ville et des centres commerciaux et accessible en moins de 2 min de la 4 voies. Elle offrira un cadre de vie intime à leurs futurs propriétaires tout en garantissant l'accès à toutes les commodités. Conçue sur la base d'une architecture moderne (en plain-pied) avec des matériaux nobles, la villa MANHATTAN nous plonge dès l'entrée, dans une pièce de vie conviviale composée d'un coin salon, de la cuisine ouverte et d'une salle à manger prolongée par une terrasse couverte. Elle comprend trois chambres et deux salles de bains. Parmi les chambres, la villa MANHATTAN vous propose une très belle suite de maîtres pour votre plus grand confort. En résumé, cette villa offrira donc un séjour/cuisine aménagée, un salon, un cellier, une suite parentale + deux chambres, deux salles de bains, deux WC et une terrasse couverte. Une piscine est également incluse. Au prix de 345.000€ (prix parcelle seule de 150.000€). Honoraires à la charge du vendeur. Mandat simple express. Infos/visites contacter DELMAS Yann agent mandataire indépendant du réseau TEKA IMMO. Tel: 0693948014 Inscrit au RSAC de Saint Denis sous le n° 832640825. Barème des honoraires visible sur notre site internet TEKA IMMO https://tekaimmo.fr/honoraires.pdf. Annonce rédigée sous la responsabilité éditoriale de l'agent. Les informations sur les risques naturels (séisme, inondations, volcans etc.) auxquels ce bien est exposé sont disponibles sur le site georisque : www.georisque.gouv.frn
Prix : 345 000 €
Référence Annonce 5953YD
Consulter nos honoraires agences
Annonce redigée et publiée par un agent Mandataire
Caractéristiques
| Parue le | 30/03/2023 |
| Nbr pièce(s) | 4 |
| Surface | 92 m² |
SITUER LE BIEN
CONTACTER L'AGENCE
Merci de renseigner votre e-mail pour que nous puissions vous renvoyer votre mot de passe.