
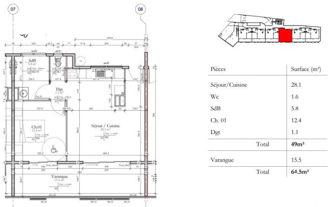
A vendre, Appartement, 49 m²
L'Étang Salé Les Bains, L’Étang Salé (97427)
DESCRIPTIF DE L'ANNONCE
iad France - Sylvain BENEDICT (06 92 85 11 49) vous propose : DERNIERE OPPORTUNITE POUR INVESTIR OU HABITER !!
Dernier T2 de 49 m2 environ habitables auxquels s’ajoute une varangue (15 m2 environ) soit une surface utile totale de plus de 64 m2 environ. Appartement traversant, lumineux, cuisine équipée dans une résidence à taille humaine.
Place de parking incluse.
Frais de notaire réduits.
Eligible à la défiscalisation 2023.
Ce bien vous intéresse ? N'attendez plus !! Contactez-moi rapidement.
En plein cOEur du centre-ville d’Etang-Salé, ce résidence vous permet en d’acquérir 24 logements aux prestations qualitatives : respect des dernières normes environnementales, ascenseur, parking sécurisé, varangues abritées et orientées vers un parc boisé.
Très bien implantée, l’accès aux commerces est immédiat, la route des Tamarins est à 5 minutes, Saint-Pierre et Saint-Leu sont à 15 minutes. Tout proches, un des plus belles plages de La Réunion et les parcours sportifs de la forêt d’Etang-Salé.
Honoraires d’agence à la charge du vendeur.Information d'affichage énergétique sur ce bien : DPE et GES vierges. Les informations sur les risques auxquels ce bien est exposé sont disponibles sur le site Géorisques : www.georisques.gouv.fr. La présente annonce immobilière a été rédigée sous la responsabilité éditoriale de M. Sylvain BENEDICT EI (ID 53746), mandataire indépendant en immobilier (sans détention de fonds), agent commercial de la SAS I@D France immatriculé au RSAC de SAINT PIERRE DE LA REUNION sous le numéro 892290230, titulaire de la carte de démarchage immobilier pour le compte de la société I@D France SAS.
Retrouvez tous nos biens sur notre site internet. www.iadfrance.fr
Prix : 235 000 €
Référence Annonce 935481-5
Consulter nos honoraires agences
Annonce redigée et publiée par un agent Mandataire
Caractéristiques
| Parue le | 13/04/2023 |
| Nbr pièce(s) | 2 |
| Garage | Oui |
| Version DPE | DPE_v01-2011 |
SITUER LE BIEN
CONTACTER L'AGENCE
ANNONCES SIMILAIRES
Merci de renseigner votre e-mail pour que nous puissions vous renvoyer votre mot de passe.