
A vendre, Appartement, 80 m²
Métropole
DESCRIPTIF DE L'ANNONCE
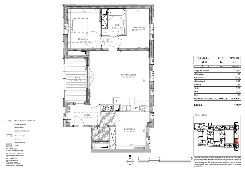
Eric DANCOISNE ️ 06 84 72 52 48 vous propose ce joli T4 de 80m² au 3ème étage avec ascenseur avec une loggia de 7m² et un Box en Sous-sol. Résidence sécurisée alliant architecture historique et contemporaine, en centre-ville à proximité immédiate des commerces, des écoles, et des transports en commun. Cet appartement est composé d'un séjour de 30.6m², de 3 chambres de 9 à 11.6m², d'une salle de bain avec baignoire, et meuble double vasque, d'un WC séparé avec lave-mains, et d'une entrée avec un placard. Confort aux normes actuelles et haut de gamme : Bâtiment basses Consommations, volets roulants électriques, parquet contrecollé, menuiseries en aluminium, balcon carrelé, chauffage urbain avec comptage individuel, accès sécurisé avec visiophone. Frais de notaire réduits : 7.600€ Investissement locatif en Pinel judicieux : Emplacement de 1er choix, secteur recherché, immeuble de caractère. Loyer attendu HC de 1.100€ et réduction d'impôt possible de 63.000€ sur 12 ans. Découvrez ce programme immobilier dans la ville de LILLE, dans le département du Nord (59), au coeur d'un quartier en pleine effervescence et au riche passé. Vous profiterez d'une situation idéale à proximité du Vieux Lille et de nombreux commerces et services. Votre quotidien sera facilité par la présence à 8 min à pied du métro "Grand Palais", à 10 min des gares principales et d'un accès rapide aux principaux axes routiers. Cet ensemble immobilier prévu pour le 1er trimestre 2023 comprendra 175 logements articulés autour de 3 cours paysagées au sein de l'emblématique collège Jean Macé. Les appartements seront du type studio au 5 pièces et offriront des volumes généreux et des prestations de qualité à la hauteur d'un cadre d'exception. Certains chanceux profiteront de logements en duplex ou de beaux espaces extérieurs. Des stationnements privatifs seront disponibles. Le projet répondra à la norme RT2012, assurant ainsi aux résidents de réelles économies au quotidien. Ce programme peut-être financé à l'aide du prêt à taux zéro. Pour les investisseurs, les logements sont éligibles à la loi Pinel. Les informations sur les risques auxquels ce bien est exposé sont disponibles sur le site Géorisques : www. georisques. gouv. fr. Contactez Eric DANCOISNE Entrepreneur Individuel à Responsabilité Limitée, Agent commercial OptimHome (RSAC N°440 244 689 Greffe de LILLE) 06 84 72 52 48 https://www.optimhome.com/conseillers/e.dancoisne (réf. 210937 )
Prix : 469 000 €
Référence Annonce 830032199768
Consulter nos honoraires agences
Annonce redigée et publiée par un agent Mandataire
Caractéristiques
| Parue le | 05/02/2022 |
| Nbr pièce(s) | 4 |
| Nbr chambre(s) | 3 |
| Surface | 80 m² |
SITUER LE BIEN
CONTACTER L'AGENCE
ANNONCES SIMILAIRES
Merci de renseigner votre e-mail pour que nous puissions vous renvoyer votre mot de passe.